
רחוב שמריהו לוין 11
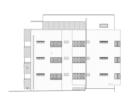
המבנה המקורי ברחוב שמריהו לוין 11 תוכנן בשנת 1936 על ידי האדריכל א. כבירי, והוא מייצג דוגמה לסגנון בניה בינלאומי מקומי מוקדם, בתל אביב-יפו. המבנה נכלל בתחום ההכרזה של "העיר הלבנה" ומוגדר כמבנה לשימור בתכנית המתאר המקומית ת"א/2650 "תכנית לשימור מבנים ואתרים בתל אביב-יפו". המבנה שוכן במתחם היסטורי המהווה מרכיב בבלוק "גדסי" טיפוסי.
המבנה מתאפיין בחזות מאוזנת וא-סימטרית, גג שטוח וחזיתות פתוחות עם חלונות רחבים ומרפסות סרט אופקיות מוצללות. המעקות הבנויים מדגישים את הקווים האופקיים וכוללים חריץ דקורטיבי לאוורור. המבנה מחופה בטיח בגמר "וואשפוץ" גמר אופייני לאותה תקופה. הכניסה לבניין ממוקמת בצידו, בעיצוב צנוע, ומאפשרת מרפסת קומת קרקע וגינה קידמית.
תוספת הבנייה על הגג מתייחסת למאפיינים האדריכליים של המבנה המקורי, בהמשכיות צורנית וחומרית, אך ביחסים שונים בין פתחים לקירות. בקומת התוספת, הפתחים גדולים ורבים יותר, ומאפשרים פתיחות מרבית אל הנוף הנשקף והמרפסת בקומה הגבוהה.
השפה האדריכלית של התוספת שואבת השראה מהמעטפת ההיסטורית, בפרשנות עדכנית מבחינה חומרית וטכנולוגית. התכנון כולל התאמת המבנה למערכות טכניות ולצרכים עכשוויים תוך שמירה על אופיו המקורי.
התכנון והשימור כוללים תהליך של שיחזור ושיקום של מעטפת המבנה, פרטי בניה, ציורי קיר והתאמת המבנה הקיים והתוספת לצרכים מעודכנים ולמערכות חדשות.
יזמים: פרטי
אדריכלות ואדריכלות שימור: בשיתוף עם אדריכלית סיון סימון אברג'יל
תיעוד: בשיתוף עם אדריכלית סיון סימון אברג'יל
תיעוד ציורי קיר: סטודיו EKA
סטטוס: תכנון
הדמיות: תמנע זאודר שחורי
תל אביב, רחוב שמריהו לוין 11
.תכנו ן תוספת הבניה ושימור המבנה, ליווי עבודות השימור והביצוע
Tel Aviv, 11 Shmaryahu Levin Street
Conservation planning and monitoring of conservation work until completion








